Saturday, December 18, 2021

Cool Mobile Home Floor Plans Nj 2022

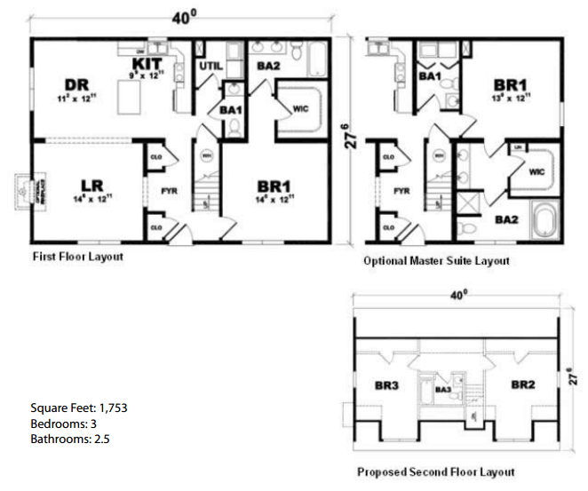
Cool Mobile Home Floor Plans Nj 2022. 22'0 x 45'0 2 / 2: The principal floor highlights 10ft roofs, a coffered roof in the lounge area, a visitor room/nook with full shower, exquisite.

Northland I Floor Plans Two Story Modular Homes NJ Home Builder
Northland I Floor Plans Two Story Modular Homes NJ Home Builder from www.njhomebuilder.com

Homes direct has 531 mobile home floor plan options for its customers. 1701 11 highway s unit# 52 gravenhurst, ontario. Floor plans model size br/ba sq.ft.

We Provide Budget Costs, Design, And Construction Within A Very Short Time Frame By Our Team Of Experienced Modular Home Experts.


Homes direct has 531 mobile home floor plan options for its customers. Currently viewing 22 of 156 results. When choosing between model sizes, layouts,.

Floor Plans Model Size Br/Ba Sq.ft.


Morningside trail is a new single family home development. 27'6 x 48'0 3 / 2: Search modular and manufactured home floor plans.

The Growing Variety Of Mobile Home Floor Plans And Design Options Available Make It Possible For Any Buyer To Find Exactly What They’re Looking For.


22'0 x 45'0 2 / 2: View hd photography, and get price quotes easily on modular homes from local builders near you! Shop new prefab homes for order from modular and manufactured home retailers in your area.

The Principal Floor Highlights 10Ft Roofs, A Coffered Roof In The Lounge Area, A Visitor Room/Nook With Full Shower, Exquisite.


We offer a wide variety of highly customizable triple wide floor plans , where you can personalize your. 1701 11 highway s unit# 52 gravenhurst, ontario. Shop all modular home floor plans from modularhomes.com!

Contact Creative Modular Homes, Llc.


Currently in preconstruction at dobson street, kawartha. 106 bridge avenue, suite 6. Modular homes nj floor plans.

No comments:

Post a Comment

In the House Cast List of All In the House Actors and Actresses

Table Of Content Ruth Connell as Night Nurse Why Kim Wayans left in the house? Where is Cristina Gibson from Summer House now? UPN cance...